Если цена в объявлении изменится, мы сразу сообщим вам об этом на электронную почту.
Нажимая «Подписаться», вы соглашаетесь с правилами.
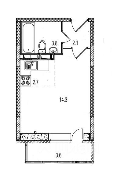
продам 1-к, Ногинск, 4б5 500 000 ₽
14 окт
Дата публикации объявления
Обн. 12 мая
Дата обновления объявления
Спецпредложение
Турбо x8
202 952 ₽/м²
Чистая продажа
Термин "Чистая продажа" означает, что в квартире никто не прописан или
есть куда выписаться и вывезти вещи. Это лучший вариант для покупателя.
Вероятность срыва сделки минимальна.
Квартира
Общая площадь27,1 м2
Количество лоджий1
Тип собственностисвидетельство о праве собственности
Дом
Этаж9 из 17
Материал домамонолит
Семейная ипотека 6% Продается квартира по адресу МО, гор Ногинск, ул Юбилейная, дом 4Б. Новый 13-15-17-ти этажный дом 2024 года постройки, входящий в состав жилого комплекса ''Истомкино''. Дом сдан в эксплуатацию. Предчистовой ремонт ''white box'' входит в стоимость. Первоначальный взнос можно оплатить мат капиталом Жилой комплекс ''Истомкино'' имеет красивую благоустроенную территорию с детскими и спортивными площадками, освещаемой парковкой для автомобилей (100 м от дома). Заканчивается строительство детского садика на 170 мест. Прямой выезд на Горьковское шоссе в сторону Москвы, 10 мин до центра Ногинска. Рядом поликлиники, школы, парки, магазины, торговые центры Леруа Мерлен, Okey и др.
Семейная ипотека 6% Продается квартира по адресу МО, гор Ногинск, ул Юбилейная, дом 4Б. Новый 13-15-17-ти этажный дом 2024 года постройки, входящий в состав жилого комплекса ''Истомкино''. Дом сдан в эксплуатацию. Предчистовой ремонт ''white box'' входит в стоимость. Первоначальный взнос можно оплатить мат капиталом Жилой комплекс ''Истомкино'' имеет красивую благоустроенную территорию с детскими и спортивными площадками, освещаемой парковкой для автомобилей (100 м от дома). Заканчивается строительство детского садика на 170 мест. Прямой выезд на Горьковское шоссе в сторону Москвы, 10 мин до центра Ногинска. Рядом поликлиники, школы, парки, магазины, торговые центры Леруа Мерлен, Okey и др. Спортивный комплекс ''Дельфин'' с тренажерным залом и бассейном, футбольный стадион - 10 мин пешком от дома. В пешей доступности зеленая Истомкинская роща и Ногинский парк культуры и отдыха.