Термин "Чистая продажа" означает, что в квартире никто не прописан или
есть куда выписаться и вывезти вещи. Это лучший вариант для покупателя.
Вероятность срыва сделки минимальна.
Этажей2
Площадь участка8,3 соток
Общая площадь135 м2
ЭлектричествоЕсть
Газоснабжениецентральное
ПРЕДЛОЖЕНИЕ ОТ ЗАСТРОЙЩИКА
Коттедж 135 кв.м., участок 8,3 соток.
Адрес: Московчкая область, Дмитровский г.о., д.Митькино, поселок Митькина Слобода-2, Дмитровское шоссе 55 км от МКАД, 1 км от г.Дмитров.
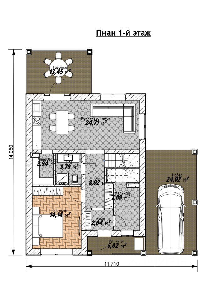
Коттедж 135 кв.м., полноценные 2 этажа, высота потолков 1 этаж - 3,20м, 2 этаж- 3,0м. в доме большие окна за счет чего в комнатах много естественного света. Планировка дома: 1 этаж: кухня-гостиная, 1 спальня, кладовая, с/у, бойлерная, прихожая, на 2 этаж ведет удобная П образная лестница. 2 этаж: 4 спальни, с/у. Материал стен газобетонные блоки Бонолит d500, отделка фасада декоративная штукатурка. Внутренняя отделка: без отделки.
ПРЕДЛОЖЕНИЕ ОТ ЗАСТРОЙЩИКА
Коттедж 135 кв.м., участок 8,3 соток.
Адрес: Московчкая область, Дмитровский г.о., д.Митькино, поселок Митькина Слобода-2, Дмитровское шоссе 55 км от МКАД, 1 км от г.Дмитров.
Коттедж 135 кв.м., полноценные 2 этажа, высота потолков 1 этаж - 3,20м, 2 этаж- 3,0м. в доме большие окна за счет чего в комнатах много естественного света. Планировка дома: 1 этаж: кухня-гостиная, 1 спальня, кладовая, с/у, бойлерная, прихожая, на 2 этаж ведет удобная П образная лестница. 2 этаж: 4 спальни, с/у. Материал стен газобетонные блоки Бонолит d500, отделка фасада декоративная штукатурка. Внутренняя отделка: без отделки. Фундамент свайный ростверк + монолитная жб плита+монолитные входные ступени, межэтажные перекрытия и лестница монолитные жб, крыша - металлочерепица, огнебиозащита стропильной системы, утеплитель чердачного перекрытия Базальт, софиты, водосточная система, снегозадержатели, качественные окна пвх 3 стекла, металлическая входная дверь. Высокое качество строительства с применением качественных строительные материалы. Дом дополнительно можно укомплектовать автомобильным навесом или полноценным гаражом и террасой.
Дом расположен на тихой и уединённой улице, где всего 3 дома. Участок 8,3 сотки, прямоугольной формы, примыкает к ручью, есть возможность для творчества и увеличения площади участка.
Добротный, долговечный дом на надежном фундаменте, будет радовать вас комфортным проживанием долгие годы, в нем тепло зимой и не жарко летом. Строительство ведется строго по строительным нормам с применением качественных строительных материалов.
Поселок в единой стилистике на 40 домов (первая очередь 37 домов уже проживает), огороженная территория, дороги асфальт, въезд через кпп с автоматическими воротами.
Поселок находится в 1 км от г. Дмитров с развитой социально бытовой инфраструктурой: сады и школы, продуктовые магазины и большие торговые центры, больница и поликлиники, музеи, театр, фитнес центры, ледовый дворец, бассейн, кафе, рестораны и многое другое находится в пределах 10 мин. езды от поселка. Транспортная доступность: 55 км от МКАД, доступен общественный транспорт, автобусная остановка возле поселка всего 4 остановки до жд вокзала Дмитров, время в пути до м.Савеловская 60 мин.
Условия оплаты: доступна ипотека, имеется без % рассрочка платежа.
Показы проходят в будни и выходные, по договоренности.