Если цена в объявлении изменится, мы сразу сообщим вам об этом на электронную почту.
Нажимая «Подписаться», вы соглашаетесь с правилами.
продам дом, Первомайская, 151/130 000 000 ₽
20 июня 2025
Дата публикации объявления
Обн. 20 авг 2025
Дата обновления объявления
5
Количество просмотров (+ просмотры за сегодня)
98 361 ₽/м²
Чистая продажа
Термин "Чистая продажа" означает, что в квартире никто не прописан или
есть куда выписаться и вывезти вещи. Это лучший вариант для покупателя.
Вероятность срыва сделки минимальна.
Этажей2
Площадь участка8 соток
Общая площадь305 м2
Материал домамонолит
ЭлектричествоЕсть
Газоснабжениецентральное
Главные преимущества: - Один собственник, полная стоимость в договоре, свободная продажа - Полностью готовый к заселению дом с качественным, новым, дизайнерским ремонтом - 10 минут на машине от МКАД
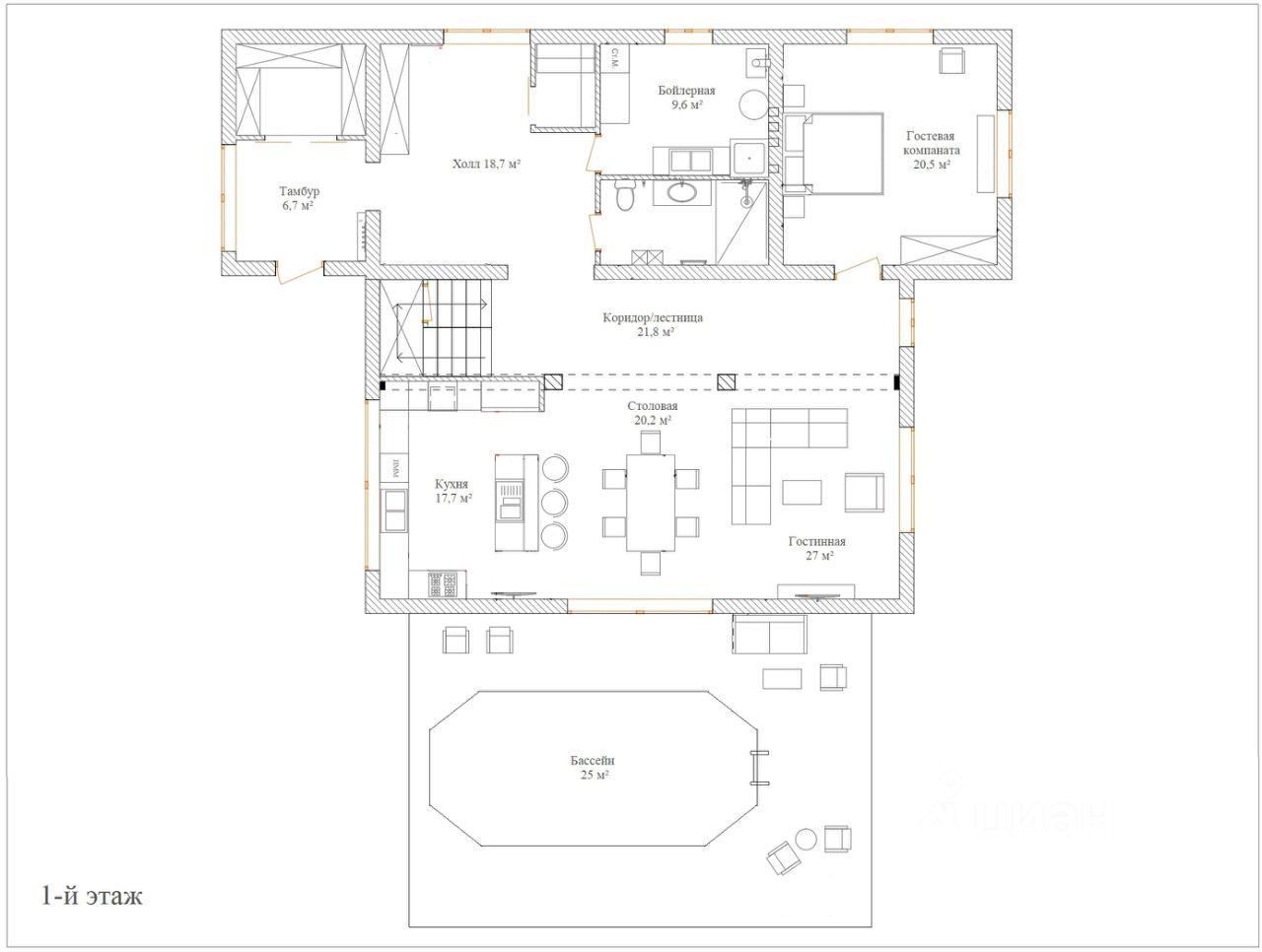
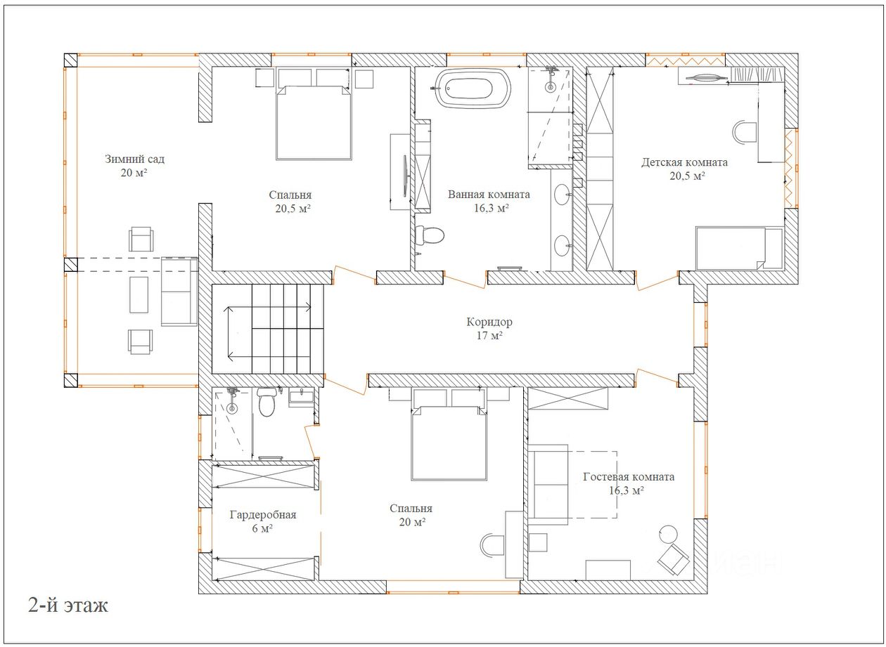
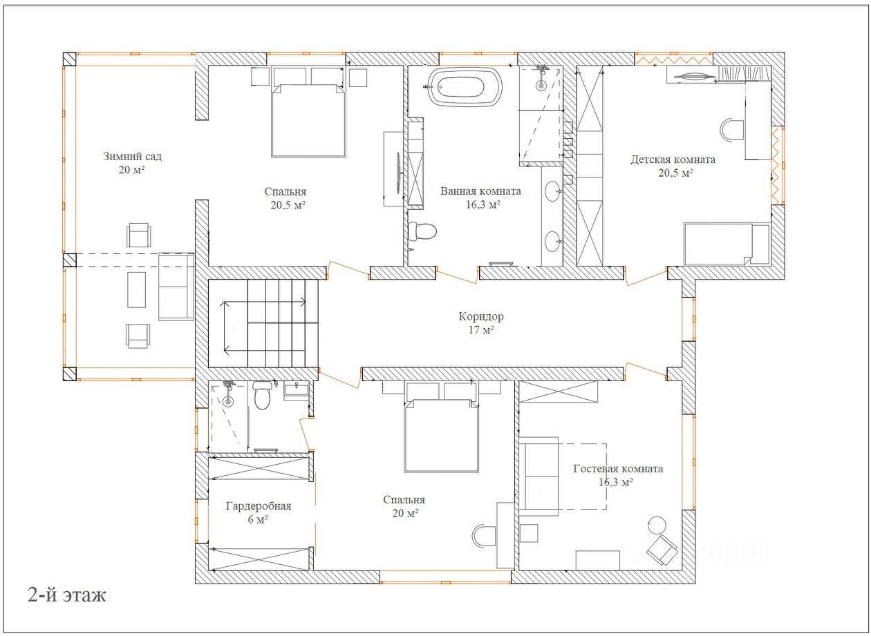
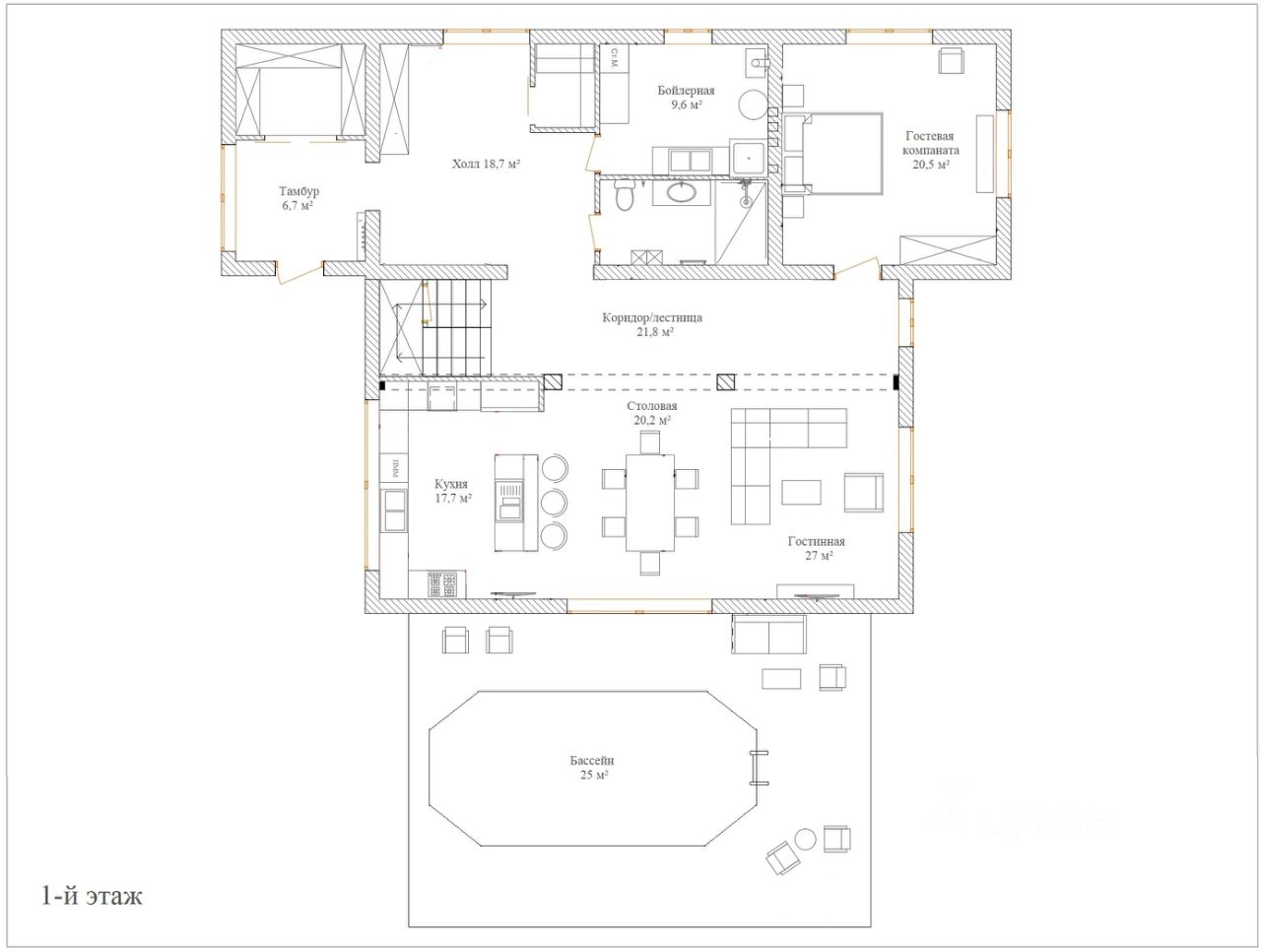
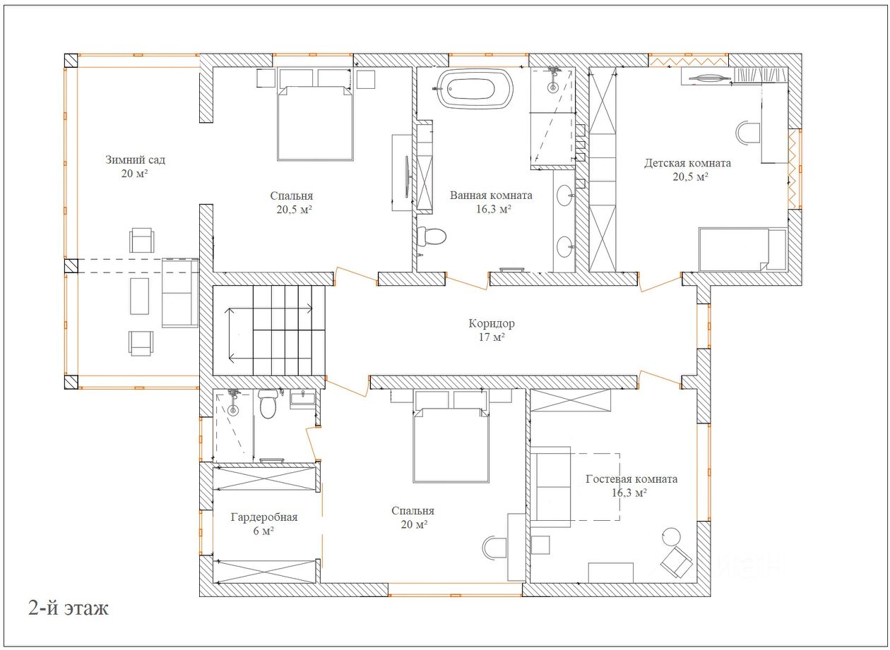
Дом. Площадь 305 м²: 1-й этаж: кухня-гостиная, сан.узел, гостевая комната, бойлерная, гардероб, выход на веранду с бассейном 2-й этаж: 4-е спальни (мастер-спальня с собственным сан.
Главные преимущества: - Один собственник, полная стоимость в договоре, свободная продажа - Полностью готовый к заселению дом с качественным, новым, дизайнерским ремонтом - 10 минут на машине от МКАД
Дом. Площадь 305 м²: 1-й этаж: кухня-гостиная, сан.узел, гостевая комната, бойлерная, гардероб, выход на веранду с бассейном 2-й этаж: 4-е спальни (мастер-спальня с собственным сан.узлом и гардеробом), огромная ванная комната с душем и ванной
Техника и оборудование: - Стиральная машина, сушильная машина, микроволновая печь, духовой шкаф, посудомоечная машина (90 см) фирмы AEG (всё немецкой сборки), электрическая плита компании SMEG, холодильник (Side-by-Side) LIEBHERR - Бассейн 7 на 4 метра фирмы Atlantic Pool с подогревом глубиной 1,4 м.
Материалы, инженерия и ремонт: - Скважина глубиной 98 метров, магистральный газ, электричество 15кВт - Газовый котел на 60 кВт, бойлер косвенного нагрева на 200 л. - Стены 400-й пеноблок, перегородки 200-й пеноблок. Весь внешний контур утеплен пенопластом, чердак утеплен. - Регулируемый тёплый пол на каждом этаже, Регулируемые радиаторы в каждой комнате. На пол уложен кварцвинил.
Участок. Площадь 800 м². Земли населенных пунктов. Для ведения личного подсобного хозяйства - Ровный, сухой участок правильной формы - Парковка для 2 машин - Автоматические ворота. Домофон подведён на оба этажа. - Терраса с зоной барбекю в которую встроен бассейн. Терраса отделана лиственницей.
Инфраструктура: - Полностью укомплектованная инфраструктура в ЖК Пригород Лесное. - Через дорогу школа с дошкольным отделением - Остановка общественного транспорта в 5 минутах ходьбы до м.Домодедовская - Удобный выезд на Каширское шоссе
Оптимальный вариант для тех, кто хочет купить новый, загородный дом полностью готовый к проживанию по выгодной цене и не далеко от Москвы.