Дом, ПКСН Осоргино территория, 153 Показать на карте
Осоргино
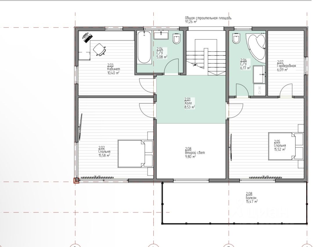
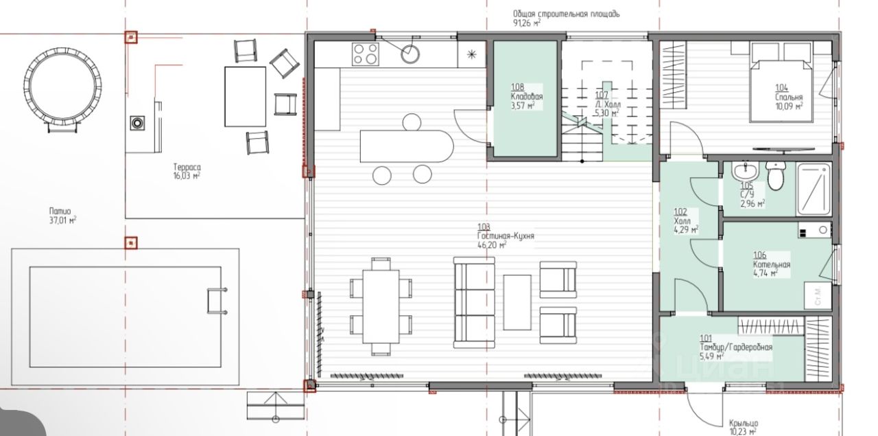
НОВЫЙ ДОМ, СТРОИЛИ ДЛЯ СЕБЯ, НЕ ЭКСПЛУАТИРОВАЛИ.Удобный заезд с Минского шоссе через эстокаду над ж/д путями. Тихое спокойное место с приличными соседями. ТУПИКОВЫЙ ЗАЕЗД-нет графика машин и людей. Участок: Межевание проведено. Ровный. Сухой.Двойная система дренажа. Асфальт до дома. Высажено много плодоносных деревьев и кустарников. На участке БОЛЬШАЯ ЗИМНЯЯ БЕСЕДКА с кухней и барбекю, теплыми полами.Дом 1-й этаж: Гостиная с обеденной зоной, Кухня -гостиная, спальня с санузлом, санузел гостевой, серверная2-й этаж: 4 спальни, 3 санузла, 2 балкона 38 и 20 метров3-й (мансардный этаж): запланирован как комната отдыха бильярдная, кинотеатр. Имеется барная стойка и зона кухни. 0-й (цокольный этаж): 2 санузла, бассейн, сауна, комната управления бассейном, прачечная, бойлерная, гараж, холодный погреб, комната с системой очистки воды, комната для работников или охраны.Теплые полы, паркет наборный, лепнина гипс, подоконники, столешница натуральный камень, мебель, бытовая техника, инженерное оборудование топовых мировых производителей.Матepиaл конструкции дoмa - жeлeзoбетoнный мoнoлит, фундaмeнт - монолитная плитa. Стены из гaзoсиликатногo блoка, c утеплителeм по контуру, включaя кpышу. Кpoвля - мягкая черепица.Коммуникации:Газ магистральный прямой договор, центральная канализация, водопровод центральный, скважина, электричество 45 квт-прямой договор с мособлэнергосбыт, аварийный дизельный генератор с автоматическим управлением. многоступенчатая система очистки воды, проточно-вытяжная система вентиляции и очистки воздуха, проточная система очистки воды в бассейне, электрическая сауна, система кондиционирования воздуха, система охраны и видеонаблюдения.Документы: Договор дарения от родителей 2016, также участок газопровода от распределительной станции к дому в собственности.
1050 м2
3 этажа
- Показать контакты
- Добавить в избранное
1050 м2
3 этажа
95 550 000
91 000 /м2
